3 Bedroom Terraced For Sale   |   Clarence Road, Harborne, Birmingham, B17 9LA   |    £390,000

Key Features

  • Characterful 3 bedroom home
  • Centrally located on popular road
  • Well presented with large garden
  • Convenient for Queen Elizabeth hospital
  • A short walk to High Street amenities
  • Available with no upward chain
  • Excellent links into and out of the city

Summary

A fantastic 3 bedroom character home on the ever popular, centrally located Clarence Road, just a stones throw from Harborne's popular High Street.

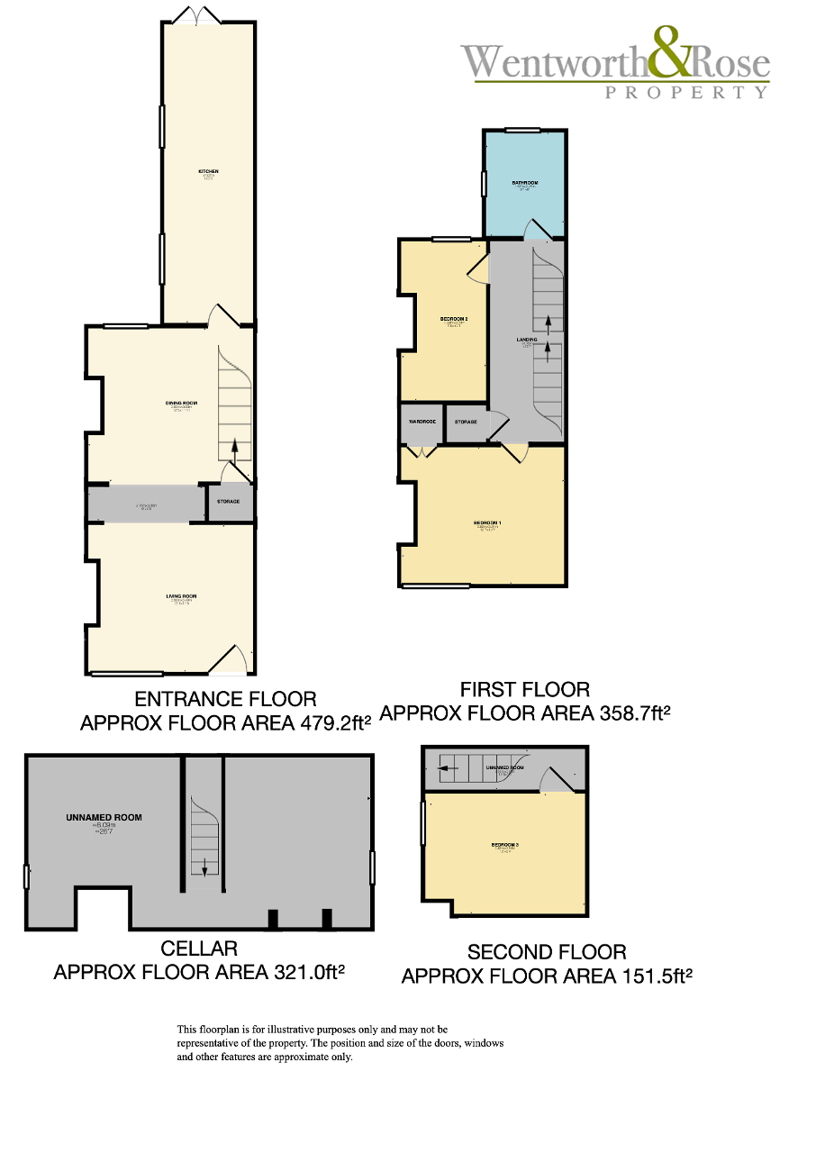
With an attractive frontage this property opens into a large through lounge and diner which features excellent proportions and plenty of flexibility to reconfigure the space according to individual needs. To the rear sits an extended kitchen which includes plenty of storage space and a pleasant outlook onto the spacious garden. From the ground floor there is access to a good sized cellar that would benefit from further conversion and offers the potential for additional living space.

Heading up to the first floor you will find two good sized bedrooms with high ceilings throughout and access to a well configured family bathroom, complete with shower over bath arrangement.

On the top floor sits a further well appointed double bedroom which has access to under eave storage and a large Velux window allowing for plenty of natural light.

The garden itself enjoys a private outlook with mature borders and a larger than average space despite the property's central location.

To summarise, this charming, centrally located home offers an excellent opportunity for those seeking character on one of Harborne's most well regarded roads. It offers scope for the next owner to put their mark on the property with further potential and a great base to work from.

Location

Located just off Harborne's ever popular high street Clarence Road is well known for it's mix of period architecture and well kept houses with many long term residents and a strong sense of community. It is very well positioned to take advantage of the wide range of shops, bars and restaurants located along the high street including a Waitrose supermarkets, Marks and Spencers and the famous Plough bar and restaurant.

Clarence Road is easily walkable to the nearby Queen Elizabeth hospital and Birmingham University. The surrounding area offers excellent state and independent schools for all ages and the property is within the catchment for the sought after Harborne Primary School and Chad Vale Primary school.

Recreational amenities of particular note include Edgbaston & Harborne Golf Clubs, Edgbaston Priory Lawn Tennis & Squash Club, a Sailing Club at Edgbaston Reservoir, the Warwickshire County Cricket Ground, Edgbaston Botanical Gardens and Archery Club.

This road is also well located to take advantage of the nearby Harborne Walkway which gives a very scenic route into the city centre either on foot or via bicycle.

Additional Information

For further information on this property please call 0121 427 7773 or e-mail info@wentworthandrose.co.uk

Contact Us

4a Albany Road, Harborne, Birmingham, B17 9JX

0121 427 7773

info@wentworthandrose.co.uk


Key Features

  • Characterful 3 bedroom home
  • Well presented with large garden
  • A short walk to High Street amenities
  • Excellent links into and out of the city
  • Centrally located on popular road
  • Convenient for Queen Elizabeth hospital
  • Available with no upward chain

Share this property

Property Search

Share this property