2 Bedroom Semi-Detached For Sale   |   Hay Green Close, Bournville, Birmingham, B30 1RQ   |    £380,000

Virtual Tour

Key Features

  • Two stylish double bedrooms
  • Peaceful Bournville cul-de-sac
  • Extended modern kitchen diner
  • Stylish updated bathroom
  • Bespoke dining nook with seating
  • Feature fireplace to living room
  • Flexible office or reception room
  • Contemporary updated bathroom
  • Driveway & garage with access
  • Scope for extension (STPP)

Summary

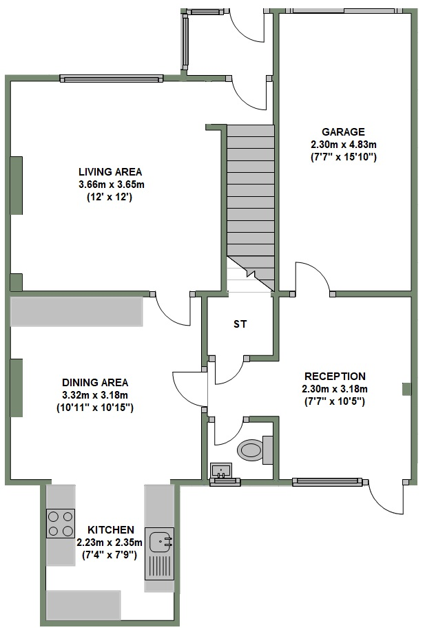
This beautifully presented two bedroom semi-detached home is located on the peaceful and well regarded Hay Green Close, offering a bright and inviting living environment complemented by a generous garden and excellent proportions throughout. The property has been updated with care, blending character features with modern touches, and sits within a small cul-de-sac that benefits from a calm residential feel and a strong sense of community.

Approached by a driveway providing parking for two cars and access to the garage, the property is entered through a useful porch which leads into a welcoming front reception room. This space has a private outlook over the garden and features a charming fireplace with exposed brickwork, creating a warm focal point. The ground floor continues with a spacious dining area that flows seamlessly into the extended kitchen. Thoughtfully designed, the kitchen combines contemporary cabinetry with ample preparation and storage space, enjoying plenty of natural light and direct views across the south westerly garden.

The ground floor also benefits from a versatile additional reception room, ideal as a home office, study or playroom, along with a downstairs cloakroom. Internal access to the garage further adds to the practicality of the layout.

Upstairs, the property offers two well-proportioned double bedrooms, each with excellent natural light and attractive green outlooks. The bathroom has been finished to a high standard and includes a shower over the bath.

Externally, the rear garden is a particular highlight. It offers both paved and lawned areas, ideal for entertaining and family use, with established planting, a shed and space for outdoor seating. Its favourable south westerly orientation makes it perfect for enjoying the afternoon and evening sun. The garden"s size and privacy add to its appeal and make it a versatile space for a variety of uses.

Hay Green Close is a quiet cul-de-sac set within the desirable Bournville area, surrounded by established parkland and leafy streets while still offering excellent convenience. The area is well served by highly regarded schools, local shops and cafés, and benefits from excellent transport links including Bournville train station, providing direct services into Birmingham city centre.

This is a superb opportunity to purchase a thoughtfully improved home that balances character, comfort and practicality in one of the area"s most sought after settings, with the additional potential for extension subject to planning permission.

Location

Hay Green Close is a particularly peaceful and well regarded cul-de-sac set within the sought after area of Bournville, a location renowned for its character, green spaces and welcoming community feel. With only a small number of homes in the close, it offers a safe and private environment with very little through traffic, making it especially appealing to those seeking a calm residential setting.

The wider area is rich in heritage and charm, with Bournville Village Trust ensuring that the character and high standards of the neighbourhood are carefully preserved. Leafy surroundings, tree-lined streets and established parkland create a pleasant backdrop for everyday living, while a strong sense of community continues to be a hallmark of this much-loved area.

Practicality is equally well catered for, with an excellent selection of local shops, cafés and services nearby, along with larger amenities in nearby Stirchley, Cotteridge and Harborne. Bournville is also home to a range of highly regarded schools, making it a popular choice for families.

For those who commute, transport links are a particular advantage, with Bournville train station offering regular services into Birmingham New Street and beyond. The location also benefits from easy access to the motorway network and excellent local bus routes, providing convenient connections across the city.

Hay Green Close combines the tranquillity of a private cul-de-sac with the convenience of nearby amenities, green surroundings and strong travel links, making it a location that balances lifestyle and practicality in equal measure.

Additional Information

For further information on this property please call 0121 427 7773 or e-mail info@wentworthandrose.co.uk

Contact Us

4a Albany Road, Harborne, Birmingham, B17 9JX

0121 427 7773

info@wentworthandrose.co.uk


Key Features

  • Two stylish double bedrooms
  • Extended modern kitchen diner
  • Bespoke dining nook with seating
  • Flexible office or reception room
  • Driveway & garage with access
  • Peaceful Bournville cul-de-sac
  • Stylish updated bathroom
  • Feature fireplace to living room
  • Contemporary updated bathroom
  • Scope for extension (STPP)

Share this property

Property Search

Share this property