3 Bedroom Terraced For Sale   |   Bull Street, Harborne, Birmingham, B17 0HH   |    £425,000

Virtual Tour

Key Features

  • Beautifully presented three-bedroom home
  • Impressive open-plan kitchen/diner
  • Three well-proportioned bedrooms
  • Useful cellar providing ample storage
  • Convenient for Queen Elizabeth Hospital
  • Nearby to High Street amenities
  • Excellent transport links
  • Well regarded road in central location

Summary

Tucked away on one of Harborne's most charming and sought-after residential streets, this beautifully presented three-bedroom home blends period character with contemporary living, offering generous proportions arranged over three floors.

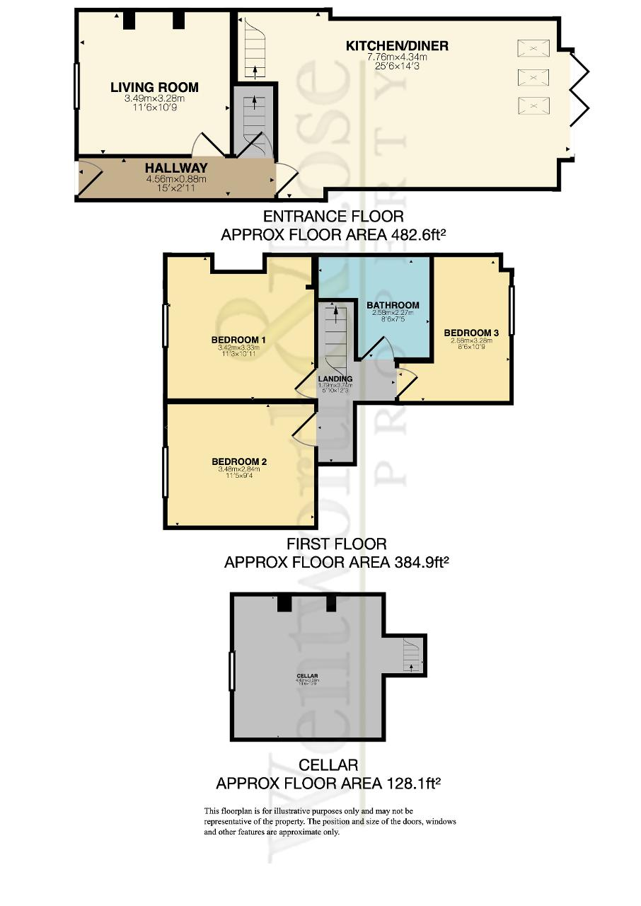
The property is entered via a welcoming hallway that immediately sets the tone, leading through to a cosy yet elegant front living room; a perfect space for relaxing evenings or entertaining guests with a wonderful log-burning stove as the centrepiece of the room.

To the rear, the heart of the home is an impressive open-plan kitchen and dining room, flooded with natural light and thoughtfully designed for modern family life with vaulted ceiling. Complete with integrated appliances, there is ample space for a large dining table and an additional seated area. This versatile room is made for both everyday living and social occasions. The space extends out through bifold doors to directly access the low-maintenance garden which enjoys all day sun during summer months.

The first floor hosts three well-proportioned bedrooms, two generous doubles and a single, all finished to an excellent standard; alongside a stylish family bathroom, featuring a rainfall shower and freestanding bathtub. The layout offers flexibility for growing families, home working, or guest accommodation.

A further valuable feature of the home is the cellar which benefits from mains electricity and central heating, thus providing excellent additional storage or potential for further use, subject to the relevant consents.

Beautifully presented throughout, the property combines tasteful décor with practical living spaces, creating a home that is truly ready to move into.

Perfectly positioned within 1 minute walking distance of central Harborne High Street, residents can enjoy an array of independent cafés, restaurants, shops and highly regarded schools, as well as excellent transport links into Birmingham City Centre and beyond.

This is a wonderful opportunity to acquire a characterful and thoughtfully maintained home in the heart of Harborne; early viewing is highly recommended.

Location

Bull Street is a highly regarded residential road set within the heart of Harborne, one of Birmingham's most desirable and well-established suburbs. Less than 1 minutes walk to High Street amenities, the property sits within central Harborne, offering a wonderful balance of village-style living with excellent city connectivity.

Harborne High Street is just a short walk away, providing an excellent selection of independent cafés, restaurants, delicatessens and boutique shops, alongside well-known supermarkets and everyday amenities. The area is particularly popular with families and professionals alike, thanks to its strong sense of community and vibrant local scene.

The location is well served by highly regarded state and independent schools, making it an attractive choice for families. For outdoor enthusiasts, the open green spaces of Queens Park and Harborne Walkway are close by, offering scenic routes for walking, running and cycling.

Excellent transport links connect Bull Street to Birmingham City Centre, the Queen Elizabeth Hospital and the University of Birmingham, while nearby access to the A38 and M5 provides straightforward routes to the wider Midlands and motorway network.

Combining charm, convenience and connectivity, Bull Street represents one of Harborne's most appealing residential settings.

Energy Efficiency

EPC Graph

Additional Information

For further information on this property please call 0121 427 7773 or e-mail info@wentworthandrose.co.uk

Contact Us

4a Albany Road, Harborne, Birmingham, B17 9JX

0121 427 7773

info@wentworthandrose.co.uk


Key Features

  • Beautifully presented three-bedroom home
  • Three well-proportioned bedrooms
  • Convenient for Queen Elizabeth Hospital
  • Excellent transport links
  • Impressive open-plan kitchen/diner
  • Useful cellar providing ample storage
  • Nearby to High Street amenities
  • Well regarded road in central location

Share this property

Property Search

Share this property